Wir fertigen auch individuell nach Ihren Vorstellungen.
Direkte telefonische Beratung unter +49 (0)2265 - 314
										Direkte telefonische Beratung unter +49 (0)2265 - 314
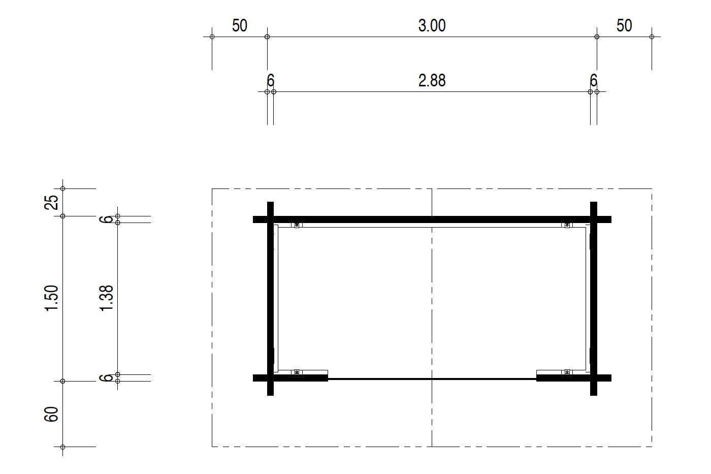
Die Buswartehalle in den Maßen 1,50 x 3,00 m ist unser meistverkauftes Modell. Diese Größe ist für die meisten Bushaltestellen ausreichend. Neben der klassischen Verwendung als Wartehalle an der Bushaltestelle sind die Einsatzmöglichkeiten dieses Holz-Unterstands vielfältig.
| Wandstärke: | 60 mm | 
| Material: | Massiv-Blockwand | 
| Länge x Breite: | 1,50 x3,00 m | 
| Dachüberstand: | vorne: 0,60 m seitlich: 0,50 m hinten: 0,25 m | 
| Dachtyp: | Satteldach | 
| Dachneigung: | 13° | 
| Seitenwandhöhe: | 2,10 m | 
| Wandkonstruktion: | 
60 mm Massiv-Blockwand innenliegende Gewindestangen in den Längswänden Spezial-Eckfräsung  | 
| Dachkonstruktion: | 
Satteldach mit Pfetten aus KVH-Holz 8 x 16 cm Dachschalung aus 22 mm N+F-Profilbrettern als Platten vormontiert 1 Lage Dachpappe V13 beschiefert, Traufbleche  | 
| Lieferumfang: | 
komplettes verzinktes Befestigungsmaterial 1 Lage Dachpappe V13 besandet 1 Lage Dachpappe V13 beschiefert Traufbleche Werksgrundierung farblos Farblasur für Außenanstrich  | 
| Optionen: | 
Schindel- o. Pfanneneindeckung Dachrinnen Montage Schleppdach Rolltor Sitzbank  |